場地
促銷
目的地
Discover
豪華
新
場地清單
場地清單
場地清單
場地清單
設置
設置
登記
登錄
返回 Crowne Plaza Albuquerque
Texas/Nevada
上一個會議室
下一個會議室
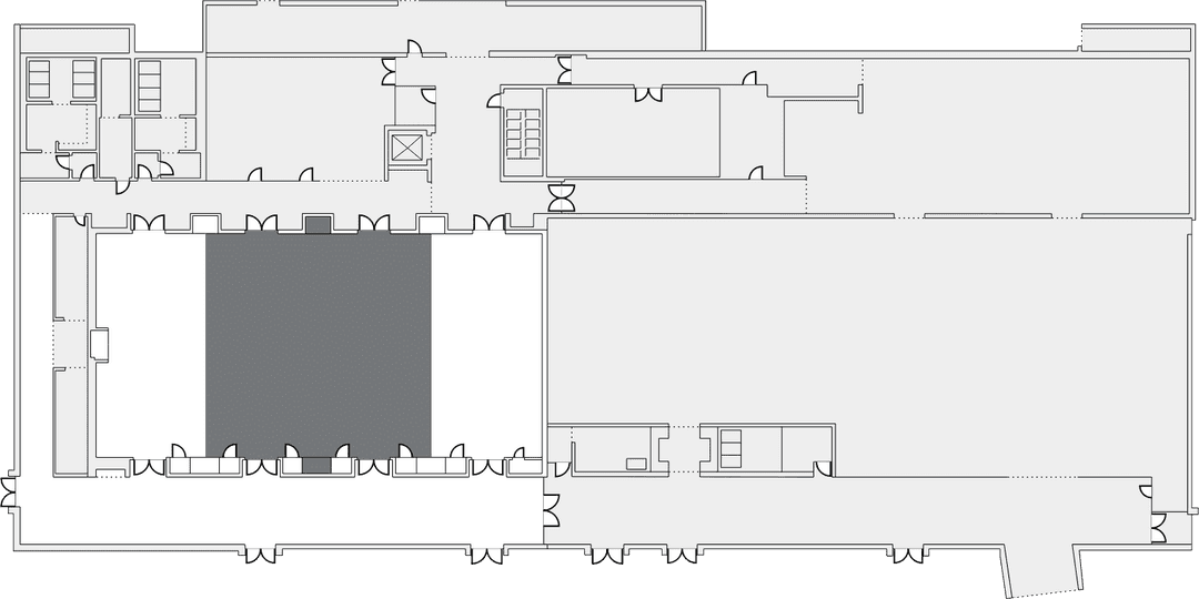
會議室詳細資訊
下載平面圖
房間大小
2,200 平方英尺
天花板高度
15 英尺
會議室大小
48 x 47 平方英尺
最大名額
-
Ready to send your inquiry?
Ready to send your inquiry?
選擇場地
Ready to send your inquiry?
選擇場地
促銷
$500 AMEX Gift Card
2024/11/11 - 2026/12/31
促銷價格
領取促銷